Bien 10295
BIEN à ST MEDARD EN JALLES
pour un expert-immobilier sur l'Espagne (Málaga)
Bien situé à
St Medard En Jalles
Expert immo
GUANTER - Patrice
Délai d’intervention
2 jours
Note avis
5.00 / 5
3 avis
DEMANDE D’INFORMATIONS
Accueil
Annonce Nouvelle construction Penthouse Cabopino
DESCRIPTION DU BIEN
n°10295
Rappel du Bien : St Medard En Jalles (00)
Adresse
Nb lot(s) du bien :
1
Etat :
En cours
Finalité de la mise en vente :
Habiter
Type de bien :
Appartement neuf clé en main
Positionnement de cette résidence :
Principal
Fiscalité :
Aucune.
Bien en Espagne :
Le prix de vente s'entend Hors Taxe (Consultez notre page Espagne pour en savoir plus).
Les plus du bien
NOUVEAU COMPLEXE RÉSIDENTIEL PRÈS DE MARBELLA Nouvelle construction d'un complexe exclusif de luxe composé de 8 appartements avec vue sur la mer à Cabopino, près de Marbella, dans la meilleure zone de la Costa del Sol. Son orientation sud-ouest garantit la meilleure exposition au soleil et des vues panoramiques spectaculaires, nous avons pris soin de chaque détail avec un design innovant, un emplacement privilégié, à seulement 5 minutes des dunes spectaculaires d'Artola, pour les amateurs de golf, vous pouvez profiter du terrain de golf de Cabo Pino. Le projet se trouve à seulement 15 minutes de la ville de Marbella et à 30 minutes de l'aéroport de Malaga. La plage d'Artola - Cabopino, située dans la ville de Marbella, est l'une des meilleures plages vierges de la Costa del Sol. Longue de 1 200 mètres, elle se trouve dans la réserve naturelle de Dunas de Artola, déclarée monument naturel en 2001. Le paysage de cette plage contient des dunes à couper le souffle et une végétation indigène remarquable qui permet aux visiteurs de se sentir libres et connectés à la nature. Avec son sable fin et doré, la plage est parfaite pour tout le monde, car elle comporte des zones pour les familles avec des chaises longues et des fauteuils de plage, ainsi que des bars de plage et des restaurants pour se rafraîchir. Il y a également une plage de nudité...
LES IMAGES DE CE BIEN
Les PLANS
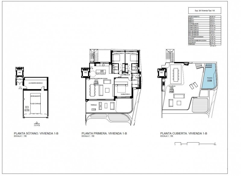
Aucun plan
Les DOCS
Aucun doc
Les fichiers autres
Partagez sur les reseaux sociaux
DETAIL DU LOT
Le prix de vente s'entend Hors Taxe (Consultez notre page Espagne pour en savoir plus).
Informations principales
Prix :
1295000 € HT
Disponibilité :
Immédiate
Surface :
Non communiqué
Nb pièces :
Non communiqué
Secteur :
Málaga
Intérieur
NB Chambre(s) :
3
(12 m²
)
Cuisine :
Incorporée
SDB :
2
WC :
1
Description
NOUVEAU COMPLEXE RÉSIDENTIEL PRÈS DE MARBELLA Nouvelle construction d'un complexe exclusif de luxe composé de 8 appartements avec vue sur la mer à Cabopino, près de Marbella, dans la meilleure zone de la Costa del Sol. Son orientation sud-ouest garantit la meilleure exposition au soleil et des vues panoramiques spectaculaires, nous avons pris soin de chaque détail avec un design innovant, un emplacement privilégié, à seulement 5 minutes des dunes spectaculaires d'Artola, pour les amateurs de golf, vous pouvez profiter du terrain de golf de Cabo Pino. Le projet se trouve à seulement 15 minutes de la ville de Marbella et à 30 minutes de l'aéroport de Malaga. La plage d'Artola - Cabopino, située dans la ville de Marbella, est l'une des meilleures plages vierges de la Costa del Sol. Longue de 1 200 mètres, elle se trouve dans la réserve naturelle de Dunas de Artola, déclarée monument naturel en 2001. Le paysage de cette plage contient des dunes à couper le souffle et une végétation indigène remarquable qui permet aux visiteurs de se sentir libres et connectés à la nature. Avec son sable fin et doré, la plage est parfaite pour tout le monde, car elle comporte des zones pour les familles avec des chaises longues et des fauteuils de plage, ainsi que des bars de plage et des restaurants pour se rafraîchir. Il y a également une plage de nudité...
La création d'un compte est obligatoire pour pouvoir valider votre demande ...
LES PROGRAMMES NEUFS À PROXIMITÉ
Les derniers conseils prodigués par nos Experts :
© 2014 - 2026 : neuf-immo.fr - Mentions légales - Politique de protection de données
Alcantarilla
Alicante
Almería
Altaona Golf And Country Village
Andalousie
Andorre
Auvergne-Rhône Alpes
Baléares
Baleares
Bourgogne-Franche Comté
Bretagne
Cádiz
Centre-Val de Loire
Corse
Costa Blanca
Costa Blanca North
Costa Blanca North - Inland
Costa Blanca South
Costa Blanca South - Inland
Costa Calida
Costa Calida - Inland
Costa de Almeria
Costa de Almeria - Inland
Costa de la Luz
Costa de la Luz (Cadiz)
Costa de Valencia
Costa del Sol
Costa del Sol (Cadiz)
Costa Tropical
Costa Tropical - Inland
Espagne
Grand Est
Hauts de France
Ile de France
Inland
La Mata
Las Kalendas
Los Angeles
Málaga
Mar De Cristal
Murcia
MURCIA
Normandie
Nouvelle Aquitaine
Occitanie
Pays de la Loire
Pilar De La Horadada
Portugal
Provence-Alpes Côte d'Azur
Puerto
Régions Ultramarines
Valencia