DESCRIPTION DU BIEN
n°9123
Rappel du Bien : St Medard En Jalles (00)
Adresse
Nb lot(s) du bien : 1
Etat :
En cours
Finalité de la mise en vente : Habiter
Type de bien : Appartement neuf clé en main
Positionnement de cette résidence : Principal
Fiscalité : Aucune.
Bien en Espagne : Le prix de vente s'entend Hors Taxe (Consultez notre page Espagne pour en savoir plus).
Les plus du bien
Nouveau complexe résidentiel de bungalows et de maisons de ville à La Finca Golf.
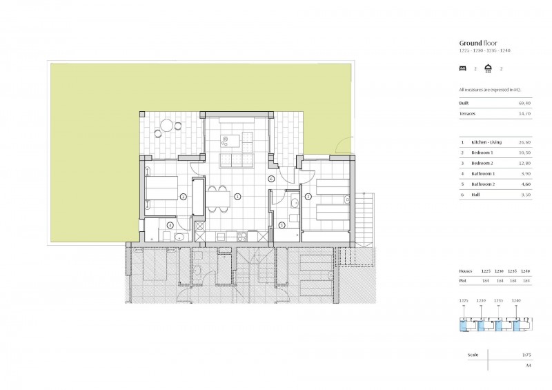
Les bungalows modernes ont 2 chambres, 2 salles de bains, une cuisine ouverte intégrée à l'espace de vie qui relie les chambres, les salles de bains et la terrasse.
cuisine ouverte intégrée à l'espace de vie reliant les chambres, les salles de bains et la terrasse.
Les bungalows du rez-de-chaussée ont des terrasses et des jardins, les bungalows du dernier étage ont des terrasses et des solariums à l'étage supérieur.
L'orientation sud permet un éclairage naturel à tout moment de l'année et un chauffage naturel de l'aube au coucher du soleil, ce qui réduit la consommation d'énergie. Les propriétés ouvertes sont dotées de fenêtres et de portes coulissantes qui permettent une ventilation croisée et laissent entrer la lumière. Les propriétés sont situées de manière à ce que la lumière puisse pénétrer partout, tout en offrant des coins frais et douillets.
Le nouveau développement a lieu sur un terrain incroyable où les maisons ont été mises en œuvre avec un design soigné et de grands espaces pour atteindre un maximum de confort.
Sa conception est axée sur le confort et le bien-être de ses résidents et combine le style contemporain et le caractère méditerranéen.
Elle combine le style contemporain et le caractère méditerranéen, héritant de la morphologie traditionnelle avec l'utilisation de pierres sur la façade et les auvents.
Les cuisines seront livrées entièrement meublées avec un design actuel de meubles hauts et bas de grande capacité. Les meubles bas sont en stratifié laqué blanc mat et les meubles hauts en bois
en bois mélaminé avec texture sur les colonnes. Profil de poignée semi-cachée
avec système gola*. Plan de travail dans la zone de travail et la péninsule Quarz Compac Blanco Luna ou similaire.
Porte principale blindée avec finition laquée blanche sur le vantail intérieur et texture brune sur l'extérieur. Judas optique et serrure de sécurité.
Portes intérieures laquées blanches, avec façade à trois bandes et poignées rectangulaires en acier inoxydable.
Armoires encastrées avec portes coulissantes blanches.
Fenêtres et portes coulissantes en menuiserie d'aluminium marron avec finition texturée.
Fenêtres oscillo-battantes dans les salles de bains, avec verre dépoli et stores manuels.
Stores électriques et motorisés, finition en aluminium texturé marron. Tous les stores sont connectés au système domotique et sont synchronisés pour se fermer et s'ouvrir, et peuvent être commandés à partir de l'application.
Double vitrage spécial avec contrôle solaire et faible émissivité, pour profiter au maximum de la lumière naturelle et économiser sur les coûts énergétiques. Aspect esthétique optimal, couleur exceptionnelle et reflets minimes.
Certification énergétique classe A
Les propriétés offrent un niveau élevé de certification énergétique.
Ceci est possible grâce à l'isolation thermique des toits et des murs, aux menuiseries en aluminium avec double vitrage, et à l'installation de 5 panneaux solaires par bloc
Les logements sont équipés de prises électriques et de télécommunications exigées par le Règlement Electrotechnique de Basse Tension.
Interphone pour la communication entre le logement et l'entrée principale.
Nous incluons un système domotique avancé pour contrôler les stores motorisés et trois points lumineux.
Mécanismes de la série Legrand Valena Next pouvant être connectés au système de domotique.
Pré-installation de la climatisation : centrale ou split selon le modèle.
Système d'alarme complet avec un capteur par pièce, panneau tactile et sirène.
Le nouveau projet est situé à La Finca Golf.
Il est situé à côté de la première ligne de golf, face au 11ème fairway du terrain de golf de La Finca, l'un des complexes les plus emblématiques du sud-est de l'Espagne et un refuge commun pour les amateurs de golf.
Situé à seulement 4 minutes d'Algorfa, sur la Costa Blanca Sud, ce complexe avec parking couvert, piscine communautaire et jardins est l'endroit idéal pour ceux qui veulent profiter du style de vie méditerranéen :
proximité de la plage, du golf et des montagnes, entouré de tranquillité, mais avec un accès à tous les types de services et de zones de loisirs.
À quelques minutes des plus belles plages du sud de la Costa Blanca et de lieux d'une beauté exceptionnelle comme la Laguna Rosa de Torrevieja ou les Dunes de Guardamar del Segura.
Sa proximité et son accès facile à l'autoroute AP-7 et aux principales routes nationales permettent de rejoindre de nombreuses villes de la Costa Blanca telles qu'Orihuela, Cartagena, Elche, Murcia et Alicante.
Les aéroports d'Alicante et de Murcie se trouvent à moins de 30 minutes de route et sont reliés aux principales capitales européennes.
DETAIL DU LOT
Le prix de vente s'entend Hors Taxe (Consultez notre page Espagne pour en savoir plus).
Informations principales
Prix : 242000 € HT
Disponibilité : Immédiate
Surface : Non communiqué
Nb pièces : Non communiqué
Secteur : Espagne
Intérieur
NB Chambre(s) :
2
(12 m²
)
Cuisine : Incorporée
SDB : 2
WC : 1
Extérieur
Bassin : Oui
Autres spécificités
Description
Nouveau complexe résidentiel de bungalows et de maisons de ville à La Finca Golf.
Les bungalows modernes ont 2 chambres, 2 salles de bains, une cuisine ouverte intégrée à l'espace de vie qui relie les chambres, les salles de bains et la terrasse.
cuisine ouverte intégrée à l'espace de vie reliant les chambres, les salles de bains et la terrasse.
Les bungalows du rez-de-chaussée ont des terrasses et des jardins, les bungalows du dernier étage ont des terrasses et des solariums à l'étage supérieur.
L'orientation sud permet un éclairage naturel à tout moment de l'année et un chauffage naturel de l'aube au coucher du soleil, ce qui réduit la consommation d'énergie. Les propriétés ouvertes sont dotées de fenêtres et de portes coulissantes qui permettent une ventilation croisée et laissent entrer la lumière. Les propriétés sont situées de manière à ce que la lumière puisse pénétrer partout, tout en offrant des coins frais et douillets.
Le nouveau développement a lieu sur un terrain incroyable où les maisons ont été mises en œuvre avec un design soigné et de grands espaces pour atteindre un maximum de confort.
Sa conception est axée sur le confort et le bien-être de ses résidents et combine le style contemporain et le caractère méditerranéen.
Elle combine le style contemporain et le caractère méditerranéen, héritant de la morphologie traditionnelle avec l'utilisation de pierres sur la façade et les auvents.
Les cuisines seront livrées entièrement meublées avec un design actuel de meubles hauts et bas de grande capacité. Les meubles bas sont en stratifié laqué blanc mat et les meubles hauts en bois
en bois mélaminé avec texture sur les colonnes. Profil de poignée semi-cachée
avec système gola*. Plan de travail dans la zone de travail et la péninsule Quarz Compac Blanco Luna ou similaire.
Porte principale blindée avec finition laquée blanche sur le vantail intérieur et texture brune sur l'extérieur. Judas optique et serrure de sécurité.
Portes intérieures laquées blanches, avec façade à trois bandes et poignées rectangulaires en acier inoxydable.
Armoires encastrées avec portes coulissantes blanches.
Fenêtres et portes coulissantes en menuiserie d'aluminium marron avec finition texturée.
Fenêtres oscillo-battantes dans les salles de bains, avec verre dépoli et stores manuels.
Stores électriques et motorisés, finition en aluminium texturé marron. Tous les stores sont connectés au système domotique et sont synchronisés pour se fermer et s'ouvrir, et peuvent être commandés à partir de l'application.
Double vitrage spécial avec contrôle solaire et faible émissivité, pour profiter au maximum de la lumière naturelle et économiser sur les coûts énergétiques. Aspect esthétique optimal, couleur exceptionnelle et reflets minimes.
Certification énergétique classe A
Les propriétés offrent un niveau élevé de certification énergétique.
Ceci est possible grâce à l'isolation thermique des toits et des murs, aux menuiseries en aluminium avec double vitrage, et à l'installation de 5 panneaux solaires par bloc
Les logements sont équipés de prises électriques et de télécommunications exigées par le Règlement Electrotechnique de Basse Tension.
Interphone pour la communication entre le logement et l'entrée principale.
Nous incluons un système domotique avancé pour contrôler les stores motorisés et trois points lumineux.
Mécanismes de la série Legrand Valena Next pouvant être connectés au système de domotique.
Pré-installation de la climatisation : centrale ou split selon le modèle.
Système d'alarme complet avec un capteur par pièce, panneau tactile et sirène.
Le nouveau projet est situé à La Finca Golf.
Il est situé à côté de la première ligne de golf, face au 11ème fairway du terrain de golf de La Finca, l'un des complexes les plus emblématiques du sud-est de l'Espagne et un refuge commun pour les amateurs de golf.
Situé à seulement 4 minutes d'Algorfa, sur la Costa Blanca Sud, ce complexe avec parking couvert, piscine communautaire et jardins est l'endroit idéal pour ceux qui veulent profiter du style de vie méditerranéen :
proximité de la plage, du golf et des montagnes, entouré de tranquillité, mais avec un accès à tous les types de services et de zones de loisirs.
À quelques minutes des plus belles plages du sud de la Costa Blanca et de lieux d'une beauté exceptionnelle comme la Laguna Rosa de Torrevieja ou les Dunes de Guardamar del Segura.
Sa proximité et son accès facile à l'autoroute AP-7 et aux principales routes nationales permettent de rejoindre de nombreuses villes de la Costa Blanca telles qu'Orihuela, Cartagena, Elche, Murcia et Alicante.
Les aéroports d'Alicante et de Murcie se trouvent à moins de 30 minutes de route et sont reliés aux principales capitales européennes.



Tel : 06 95 95 45 45
email