DESCRIPTION DU BIEN
n°13805
Rappel du Bien : St Medard En Jalles (00)
Adresse
Nb lot(s) du bien : 1
Etat :
En cours
Finalité de la mise en vente : Habiter
Type de bien : Appartement neuf clé en main
Positionnement de cette résidence : Principal
Fiscalité : Aucune.
Bien en Espagne : Le prix de vente s'entend Hors Taxe (Consultez notre page Espagne pour en savoir plus).
Les plus du bien
Nouvelle construction résidentielle de 16 maisons de ville et villas jumelées située à Las Rocas en Manilva, sur la Costa del Sol.
Dans cette résidence, vous bénéficierez des meilleures et des plus spectaculaires vues sur la mer, jusqu'à Gibraltar et la côte marocaine, avec la meilleure orientation. Le cadre idéal pour profiter de l'authentique style de vie méditerranéen.
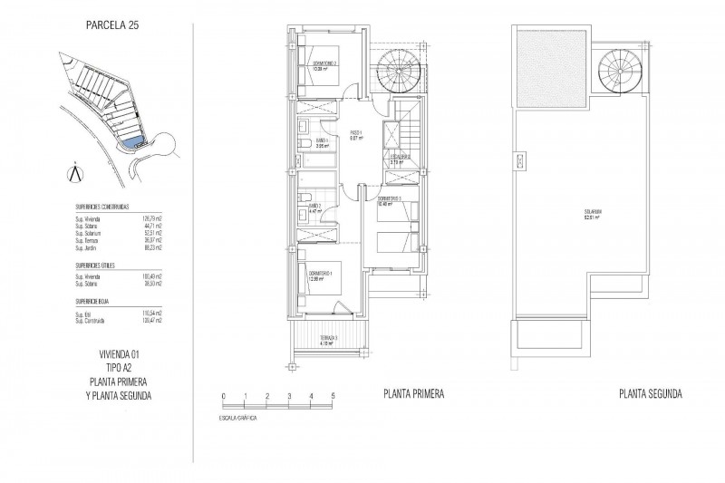
Propriétés modernes avec 3 chambres à coucher, 2 salles de bains, cuisine ouverte avec salon spacieux, armoires encastrées, terrasses, solarium, jardin privé et sous-sol avec garage.
Complexe résidentiel entièrement fermé et clôturé. Les parties communes sont dotées d'un éclairage LED pour une efficacité énergétique maximale et de rampes d'accès.
Parking privé pour deux voitures.
Vous pourrez profiter des espaces communs : la grande piscine intégrera des technologies modernes de dernière génération. Il y aura également un court de paddle tennis, une zone pour les enfants.
Résidence située dans un endroit parfait entre Marbella et Sotogrande, au cœur de la Costa del Sol et très proche de la plage. Facilement accessible grâce à d'excellentes communications routières qui se connectent directement à la N340 au km150. Situé à seulement 1 heure de l'aéroport international de Malaga et à 25 minutes de l'aéroport de Gibraltar.
Entouré d'espaces verts et des meilleurs terrains de golf d'Europe. À seulement 5 minutes se trouve le club La Reserva de Sotogrande, une grande zone de loisirs qui comprend le golf, l'équitation et un centre de villégiature avec des installations de restauration, une plage de sable blanc et une lagune pour les activités sportives.
DETAIL DU LOT
Le prix de vente s'entend Hors Taxe (Consultez notre page Espagne pour en savoir plus).
Informations principales
Prix : 607000 € HT
Disponibilité : Immédiate
Surface : Non communiqué
Nb pièces : Non communiqué
Secteur : Espagne
Intérieur
NB Chambre(s) :
3
(12 m²
)
Cuisine : Incorporée
SDB : 2
WC : 1
Extérieur
Bassin : Oui
Autres spécificités
Description
Nouvelle construction résidentielle de 16 maisons de ville et villas jumelées située à Las Rocas en Manilva, sur la Costa del Sol.
Dans cette résidence, vous bénéficierez des meilleures et des plus spectaculaires vues sur la mer, jusqu'à Gibraltar et la côte marocaine, avec la meilleure orientation. Le cadre idéal pour profiter de l'authentique style de vie méditerranéen.
Propriétés modernes avec 3 chambres à coucher, 2 salles de bains, cuisine ouverte avec salon spacieux, armoires encastrées, terrasses, solarium, jardin privé et sous-sol avec garage.
Complexe résidentiel entièrement fermé et clôturé. Les parties communes sont dotées d'un éclairage LED pour une efficacité énergétique maximale et de rampes d'accès.
Parking privé pour deux voitures.
Vous pourrez profiter des espaces communs : la grande piscine intégrera des technologies modernes de dernière génération. Il y aura également un court de paddle tennis, une zone pour les enfants.
Résidence située dans un endroit parfait entre Marbella et Sotogrande, au cœur de la Costa del Sol et très proche de la plage. Facilement accessible grâce à d'excellentes communications routières qui se connectent directement à la N340 au km150. Situé à seulement 1 heure de l'aéroport international de Malaga et à 25 minutes de l'aéroport de Gibraltar.
Entouré d'espaces verts et des meilleurs terrains de golf d'Europe. À seulement 5 minutes se trouve le club La Reserva de Sotogrande, une grande zone de loisirs qui comprend le golf, l'équitation et un centre de villégiature avec des installations de restauration, une plage de sable blanc et une lagune pour les activités sportives.



Tel : 06 95 95 45 45
email