DESCRIPTION DU BIEN
n°11710
Rappel du Bien : St Medard En Jalles (00)
Adresse
Nb lot(s) du bien : 1
Etat :
En cours
Finalité de la mise en vente : Habiter
Type de bien : Appartement neuf clé en main
Positionnement de cette résidence : Principal
Fiscalité : Aucune.
Bien en Espagne : Le prix de vente s'entend Hors Taxe (Consultez notre page Espagne pour en savoir plus).
Les plus du bien
Nouvelles maisons de ville à Las Filipinas, Orihuela Costa.
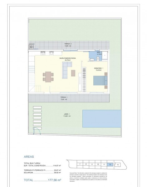
Le complexe comprend 12 maisons de ville, chacune avec 2 chambres à coucher, 2 salles de bains, des cours avant et arrière et leur propre terrasse sur le toit.
Au rez-de-chaussée, il y a un salon lumineux avec une cuisine ouverte, une chambre spacieuse avec armoire encastrée et une salle de bain.
Au premier étage, il y a une deuxième grande chambre avec une armoire encastrée et une salle de bains. De la chambre à coucher, il y a une sortie vers un balcon ensoleillé avec de l'espace pour des meubles de terrasse.
À l'étage, vous avez la terrasse sur le toit où vous pouvez placer une cuisine extérieure, un jacuzzi et un espace de détente.
Les propriétés sont livrées avec un système de climatisation préinstallé, des salles de bains équipées, un système d'eau chaude aérothermique, un interphone, un système d'éclairage LED, une cuisine extérieure et un parking.
Piscine privée de 5,5 x 2,5 m .
Développement situé près de trois terrains de golf populaires (Villamartin, Las Ramblas et Campoamor), à seulement cinq minutes des meilleures plages de Orihuela Costa.
À quelques minutes de marche, vous trouverez tous les services tels que les bars, les restaurants et les magasins, le centre commercial La Fuente.
Las Filipinas se trouve à environ 10 minutes de la célèbre place et du terrain de golf de Villamartin, où vous trouverez de nombreux bars et restaurants, un supermarché, des banques, une station de taxis et l'arrêt de bus local.
Les plages dorées d'Orihuela Costa sont à 5 minutes en voiture, tout comme le nouveau centre commercial Zenia Boulevard (le plus grand centre commercial de la province d'Alicante avec le plus grand magasin de vêtements Primark d'Europe).
Il y a 3 autres terrains de golf, tous à 5 minutes en voiture. Des courts de tennis et des cours de tennis sont disponibles à l'hôtel Campoamor voisin. Les aéroports d'Alicante et de Murcie sont à 45 minutes de route.
DETAIL DU LOT
Le prix de vente s'entend Hors Taxe (Consultez notre page Espagne pour en savoir plus).
Informations principales
Prix : 372000 € HT
Disponibilité : Immédiate
Surface : Non communiqué
Nb pièces : Non communiqué
Secteur : Espagne
Intérieur
NB Chambre(s) :
2
(12 m²
)
Cuisine : Incorporée
SDB : 2
WC : 1
Extérieur
Bassin : Oui
Autres spécificités
Description
Nouvelles maisons de ville à Las Filipinas, Orihuela Costa.
Le complexe comprend 12 maisons de ville, chacune avec 2 chambres à coucher, 2 salles de bains, des cours avant et arrière et leur propre terrasse sur le toit.
Au rez-de-chaussée, il y a un salon lumineux avec une cuisine ouverte, une chambre spacieuse avec armoire encastrée et une salle de bain.
Au premier étage, il y a une deuxième grande chambre avec une armoire encastrée et une salle de bains. De la chambre à coucher, il y a une sortie vers un balcon ensoleillé avec de l'espace pour des meubles de terrasse.
À l'étage, vous avez la terrasse sur le toit où vous pouvez placer une cuisine extérieure, un jacuzzi et un espace de détente.
Les propriétés sont livrées avec un système de climatisation préinstallé, des salles de bains équipées, un système d'eau chaude aérothermique, un interphone, un système d'éclairage LED, une cuisine extérieure et un parking.
Piscine privée de 5,5 x 2,5 m .
Développement situé près de trois terrains de golf populaires (Villamartin, Las Ramblas et Campoamor), à seulement cinq minutes des meilleures plages de Orihuela Costa.
À quelques minutes de marche, vous trouverez tous les services tels que les bars, les restaurants et les magasins, le centre commercial La Fuente.
Las Filipinas se trouve à environ 10 minutes de la célèbre place et du terrain de golf de Villamartin, où vous trouverez de nombreux bars et restaurants, un supermarché, des banques, une station de taxis et l'arrêt de bus local.
Les plages dorées d'Orihuela Costa sont à 5 minutes en voiture, tout comme le nouveau centre commercial Zenia Boulevard (le plus grand centre commercial de la province d'Alicante avec le plus grand magasin de vêtements Primark d'Europe).
Il y a 3 autres terrains de golf, tous à 5 minutes en voiture. Des courts de tennis et des cours de tennis sont disponibles à l'hôtel Campoamor voisin. Les aéroports d'Alicante et de Murcie sont à 45 minutes de route.



Tel : 06 95 95 45 45
email