DESCRIPTION DU BIEN
n°11409
Rappel du Bien : St Medard En Jalles (00)
Adresse
Nb lot(s) du bien : 1
Etat :
En cours
Finalité de la mise en vente : Habiter
Type de bien : Appartement neuf clé en main
Positionnement de cette résidence : Principal
Fiscalité : Aucune.
Bien en Espagne : Le prix de vente s'entend Hors Taxe (Consultez notre page Espagne pour en savoir plus).
Les plus du bien
Nouvelle construction d'une maison individuelle à Orxeta, une ville paisible dans une belle vallée fertile sur les rives de la Sella, et près de la côte.
fertile, sur les rives de la rivière Sella et à proximité de la côte.
La maison est distribuée sur deux étages et les extérieurs pour les loisirs avec piscine et parking privé.
Les murs extérieurs sont en briques céramiques enduites de mortier de ciment et de peinture blanche pour les façades.
pour les façades. A l'intérieur de la maison, des plaques de plâtre avec isolation thermique. La propriété extérieure disposera d'une piscine, d'une zone de détente, d'un jardin avec végétation et d'un périmètre clôturé avec accès pour les véhicules. De plus, le terrain dispose d'un chemin privé avec accès pour une voiture.
Les murs intérieurs des chambres, de la salle à manger, etc... sont recouverts de plaques de plâtre stratifié et d'une couche de peinture plastique lisse de couleur blanc mat. Le plafond sera construit avec du placoplâtre stratifié peint dans la même couleur que les murs, créant un faux plafond dans lequel il y aura des installations.
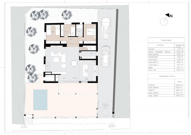
Rez-de-chaussée avec 3 chambres, 1 salle de bain, salon, buanderie et salle de détente. Premier étage avec 1 chambre avec dressing et 1 salle de bain. Extérieur avec piscine et zone de détente avec accès à la rue pour les véhicules. Chauffage et climatisation par gaines. Menuiserie en PVC avec rupture de pont thermique. Menuiserie intérieure avec portes en chêne du sol au plafond.
La maison sera équipée d'une pré-installation pour la climatisation et le chauffage par gaines.
Mobilier de la cuisine, du sol au plafond, avec îlot en chêne, plinthe en aluminium et plan de travail en Quartz Colour White. L'îlot est revêtu de carreaux de métro.
Sur la terrasse se trouve une piscine entièrement équipée.
Orxeta se présente paisiblement abritée dans une belle vallée fertile sur les rives de la rivière Sella, entourée d'imposantes montagnes qui offrent, en plus de sa protection, un superbe environnement naturel. À tout cela s'ajoutent les avantages d'un climat typiquement méditerranéen, adouci par la proximité de la mer, puisqu'il se trouve près de la côte de La Vila Joiosa.
Orxeta se trouve dans une enclave privilégiée, dans une belle vallée entre les montagnes de Relleu, Orxeta et Aitana, à côté du barrage d'Amadorio, qui offre un environnement parfait pour les amoureux de la nature, car ils trouveront d'innombrables itinéraires pour se promener et en profiter. En même temps, Orxeta est parfaitement relié aux principales routes et villes de la côte d'Alicante, à seulement 18 minutes de Benidorm (19 km), 12 minutes de La Vila Joiosa (8 km), 34 minutes d'Alicante (39 km), et seulement 36 minutes de l'aéroport El Altet de Torrellano (52 km).
DETAIL DU LOT
Le prix de vente s'entend Hors Taxe (Consultez notre page Espagne pour en savoir plus).
Informations principales
Prix : 635000 € HT
Disponibilité : Immédiate
Surface : Non communiqué
Nb pièces : Non communiqué
Secteur : Espagne
Intérieur
NB Chambre(s) :
4
(12 m²
)
Cuisine : Incorporée
SDB : 2
WC : 1
Extérieur
Bassin : Oui
Autres spécificités
Description
Nouvelle construction d'une maison individuelle à Orxeta, une ville paisible dans une belle vallée fertile sur les rives de la Sella, et près de la côte.
fertile, sur les rives de la rivière Sella et à proximité de la côte.
La maison est distribuée sur deux étages et les extérieurs pour les loisirs avec piscine et parking privé.
Les murs extérieurs sont en briques céramiques enduites de mortier de ciment et de peinture blanche pour les façades.
pour les façades. A l'intérieur de la maison, des plaques de plâtre avec isolation thermique. La propriété extérieure disposera d'une piscine, d'une zone de détente, d'un jardin avec végétation et d'un périmètre clôturé avec accès pour les véhicules. De plus, le terrain dispose d'un chemin privé avec accès pour une voiture.
Les murs intérieurs des chambres, de la salle à manger, etc... sont recouverts de plaques de plâtre stratifié et d'une couche de peinture plastique lisse de couleur blanc mat. Le plafond sera construit avec du placoplâtre stratifié peint dans la même couleur que les murs, créant un faux plafond dans lequel il y aura des installations.
Rez-de-chaussée avec 3 chambres, 1 salle de bain, salon, buanderie et salle de détente. Premier étage avec 1 chambre avec dressing et 1 salle de bain. Extérieur avec piscine et zone de détente avec accès à la rue pour les véhicules. Chauffage et climatisation par gaines. Menuiserie en PVC avec rupture de pont thermique. Menuiserie intérieure avec portes en chêne du sol au plafond.
La maison sera équipée d'une pré-installation pour la climatisation et le chauffage par gaines.
Mobilier de la cuisine, du sol au plafond, avec îlot en chêne, plinthe en aluminium et plan de travail en Quartz Colour White. L'îlot est revêtu de carreaux de métro.
Sur la terrasse se trouve une piscine entièrement équipée.
Orxeta se présente paisiblement abritée dans une belle vallée fertile sur les rives de la rivière Sella, entourée d'imposantes montagnes qui offrent, en plus de sa protection, un superbe environnement naturel. À tout cela s'ajoutent les avantages d'un climat typiquement méditerranéen, adouci par la proximité de la mer, puisqu'il se trouve près de la côte de La Vila Joiosa.
Orxeta se trouve dans une enclave privilégiée, dans une belle vallée entre les montagnes de Relleu, Orxeta et Aitana, à côté du barrage d'Amadorio, qui offre un environnement parfait pour les amoureux de la nature, car ils trouveront d'innombrables itinéraires pour se promener et en profiter. En même temps, Orxeta est parfaitement relié aux principales routes et villes de la côte d'Alicante, à seulement 18 minutes de Benidorm (19 km), 12 minutes de La Vila Joiosa (8 km), 34 minutes d'Alicante (39 km), et seulement 36 minutes de l'aéroport El Altet de Torrellano (52 km).



Tel : 06 95 95 45 45
email