DESCRIPTION DU BIEN
n°7397
Rappel du Bien : Benissa (03)
Adresse BENISSA
Nb lot(s) du bien : 1
Etat :
En cours
Finalité de la mise en vente : Habiter
Type de bien : Maison neuve clé en main
Positionnement de cette résidence : Principal
Fiscalité : Aucune.
Bien en Espagne : Le prix de vente s'entend Hors Taxe (Consultez notre page Espagne pour en savoir plus).
Les plus du bien
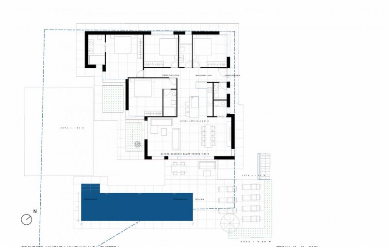
Superbe Villa Luxueuse T5
Caractéristiques : 4 chambres, 3 salles de bain , Cuisine ouverte, Salle à manger, Grandes Terrasses et Jardin paysagé et arboré ...…
Terrain de 1001 m2 .
Grande piscine privée.
Plages à 1,7 km
Terrain de Golf à 7,8 km
Aéroport d'Alicante à 92 km
Les autres équipements inclus sont : Système d'alarme - Double vitrage - Volets électriques - Interphone - Porte Blindée - Caméras de sécurités - Téléphone Vidéo - Chauffage au Sol - Parking Privé - Buanderie .....
Situé dans un merveilleux quartier entouré de grandes propriétés de luxe, ce projet est une nouvelle villa élégante et moderne avec des vues ouvertes. Ouverte à la lumière avec une construction architecturale bien pensée, des finitions luxueuses et des détails complexes, cette magnifique nouvelle villa établit une nouvelle norme pour la vie moderne.
La pierre et le contraste entre la palette de couleurs gris et blanc pur ont fusionné pour former un design moderne, tandis que les accents tels que les comptoirs en pierre et le patio intérieur créent un sentiment d'élégance discrète et d'opulence.
Aventurez-vous à l'extérieur et vous serez absolument ravi. Une impressionnante piscine s'étend jusqu'au bord de la propriété, créant un espace unique à partir duquel vous pourrez profiter de la zone paisible.. Un accès pratique à la parcelle ainsi qu'une variété d'options de conception.
Elle est situé dans une enclave exclusive de Benissa à seulement 5 minutes des plages pittoresques de sable fin et des eaux cristallines. Vous pourrez profiter des environs proches de la ville de Calpe où vous trouverez des restaurants et des centres commerciaux attrayants. Une jolie petite crique appelée Cala Pinets se trouve à seulement 1,7 km de cette belle villa, avec un environnement naturel et vert au sein du quartier.
Tout est pensé pour profiter des grands espaces, aussi bien à l'intérieur qu'à l'extérieur.
Neuf direct promoteur Garantie 10 ans + GARANTIE D'ACHAT SÛR = 20 ans de protection juridique gratuite pour toute réclamation contre cette propriété
Disponible en décembre 2023
p44
DETAIL DU LOT
Le prix de vente s'entend Hors Taxe (Consultez notre page Espagne pour en savoir plus).
Informations principales
Prix : 995000 € HT
Année construction : 2023
Disponibilité : Immédiate
Surface : 185 m²
Nb pièces : F5 et +
Secteur : Costa Blanca
Charges : Taxe foncière: 900€ par an
Intérieur
Meublé : Non Meublé
NB Chambre(s) :
4
(12 m²
)
Cuisine : Incorporée
SDB : 3
WC : 1
Sécurité : Interphone - Porte blindée
Extérieur
Vue : Panoramique
Volets électriques : Oui
Portail électrique : Oui
Piscine Collective : Oui
Solarium : Oui
Autres spécificités
Description
Superbe Villa Luxueuse T5
Caractéristiques : 4 chambres, 3 salles de bain , Cuisine ouverte, Salle à manger, Grandes Terrasses et Jardin paysagé et arboré ...…
Terrain de 1001 m2 .
Grande piscine privée.
Plages à 1,7 km
Terrain de Golf à 7,8 km
Aéroport d'Alicante à 92 km
Les autres équipements inclus sont : Système d'alarme - Double vitrage - Volets électriques - Interphone - Porte Blindée - Caméras de sécurités - Téléphone Vidéo - Chauffage au Sol - Parking Privé - Buanderie .....
Situé dans un merveilleux quartier entouré de grandes propriétés de luxe, ce projet est une nouvelle villa élégante et moderne avec des vues ouvertes. Ouverte à la lumière avec une construction architecturale bien pensée, des finitions luxueuses et des détails complexes, cette magnifique nouvelle villa établit une nouvelle norme pour la vie moderne.
La pierre et le contraste entre la palette de couleurs gris et blanc pur ont fusionné pour former un design moderne, tandis que les accents tels que les comptoirs en pierre et le patio intérieur créent un sentiment d'élégance discrète et d'opulence.
Aventurez-vous à l'extérieur et vous serez absolument ravi. Une impressionnante piscine s'étend jusqu'au bord de la propriété, créant un espace unique à partir duquel vous pourrez profiter de la zone paisible.. Un accès pratique à la parcelle ainsi qu'une variété d'options de conception.
Elle est situé dans une enclave exclusive de Benissa à seulement 5 minutes des plages pittoresques de sable fin et des eaux cristallines. Vous pourrez profiter des environs proches de la ville de Calpe où vous trouverez des restaurants et des centres commerciaux attrayants. Une jolie petite crique appelée Cala Pinets se trouve à seulement 1,7 km de cette belle villa, avec un environnement naturel et vert au sein du quartier.
Tout est pensé pour profiter des grands espaces, aussi bien à l'intérieur qu'à l'extérieur.
Neuf direct promoteur Garantie 10 ans + GARANTIE D'ACHAT SÛR = 20 ans de protection juridique gratuite pour toute réclamation contre cette propriété
Disponible en décembre 2023
p44



Tel : 06 95 95 45 45
email